





Design interior apartament 3 camere
Status: in curs de implementare
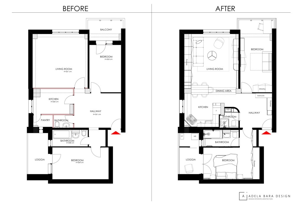
Unele dintre provocarile amenajarii unui apartament intr-un imobil vechi, sunt structura de rezistenta a acestuia cat si starea instalatiilor electrice si sanitare – la care cel mai adesea trebuie intervenit in proportie mare.
In proiectul de fata am avut posibilitatea sa renuntam (in urma unei expertize de rezistenta) la peretele dintre living-room si bucatarie, obtinand astfel un „open space” luminos.


Lasă un comentariu